Haus Nordseeblick
-
Dangast an der Nordsee
Beschreibung:
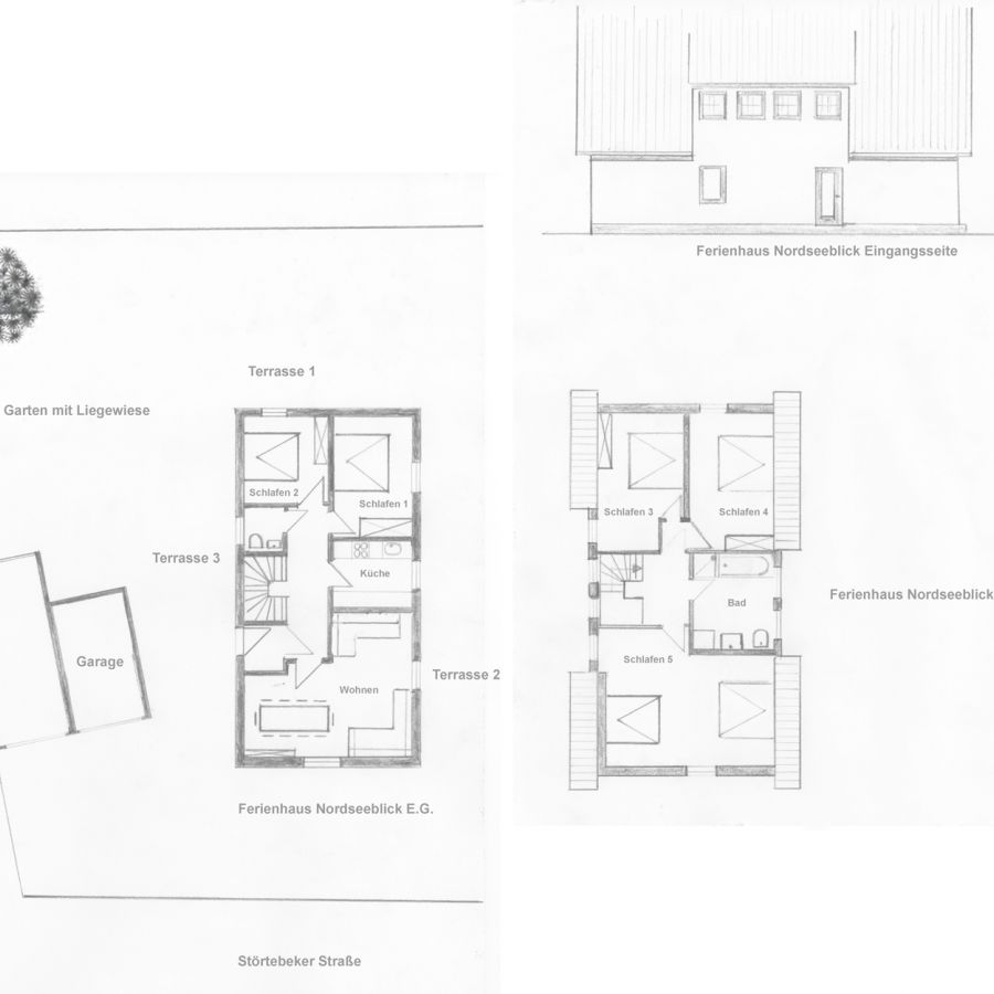
Das Haus Nordseeblick mit ca. 150 qm über 2 Ebenen für 2-10 (12) Personen bietet
5 getrennte Schlafzimmer. 2 davon mit Nordseeblick!
Einen riesigen Esstisch an dem alle gemeinsam speisen können.
In diesem Nichtraucher-Haus bleiben keine Wünsche offen.
Im Wohnbereich können Sie auf der großzügigen Sofalandschaft entspannen.
1 LED TV wenn das Wetter mal nicht mitspielt.
Im Sommer genießen Sie die sonnigen Terrassen mit dem riesigen eingezäunten Garten.
W-Lan Glasfaser ab sofort inklusive.
Lage: Direkt am Strand mit Nordseeblick aus der oberen Etage.
Das Meerwasserquellbad mit Saunalandschaft und Riesenrutsche, Restaurants, Krabbenkutterhafen und die Einkaufsmöglichkeiten erreichen Sie in 5 Minuten Fußweg.
Personen
Schlafbereiche
Wohnfläche
WLAN
erlaubt
Ausstattung:
Wohn- / Essbereich
- Geschirrspüler
- Wohnbereich mit riesiger Sofalandschaft
- Sat - LED TV im Wohnzimmer
- DVD Player
- Stereoanlage
- Esstisch für bis zu 12 Personen
- Geschirr für 12 Personen
- Spielesammlung
- Moderne Einrichung
- Fußboden: Fliesen
Küche
- Spülmaschine
- E-Herd mit Ceranfeld Backofen
- Mikrowelle
- Kaffeemaschine
- Toaster
- Wasserkocher
- Kühlschrank mit Eisfach
- Töpfe und Pfannen
- Kochutensilien
- Geschirr, Gläser und Besteck
- Fußboden: Fliesen
Bad
- 1 helles Duschbad mit zusätzlicher Badewanne im 1.O.G.
- 1 Gäste WC im E.G.
- Waschmaschine
- Fön
- Fußboden: Fliesen
Außenbereich
- Riesiger eingezäunter Garten
- 2 große Terrassen mit Gartenmöbeln
- 1x PKW Garage
- 2x PKW-Stellplatz
Schlafzimmer
- 5 getrennte Schlafzimmer
- Doppelbetten (Bei selbst mitgebrachter Bettwäsche bitte für die 4 Boxspringbetten Bettlaken in 200x200 cm mitbringen)
- Kinderbett + Hochstuhl (1 Set inklusive)
- Fußboden: Fliesen
Allgemein
- W-LAN Glasfaser inklusive
- Rauchmelder
- Nichtraucherobjekt (draußen darf natürlich geraucht werden)
Preise:
Ab der zweiten Nacht:
| Ab 2. Nacht | Preis / Nacht |
|---|---|
Nebensaison: | 169, |
Zwischensaison: | 169, |
Hauptsaison: | 219,- |
Für die erste Nacht:
| 1. Nacht | Preis / Nacht |
|---|---|
Nebensaison: | 204,- |
Zwischensaison: | 204,- |
Hauptsaison: | 254,- |
Alle Preise gelten in € je Haus oder Wohnung je Nacht inkl. Nebenkosten Strom, Heizung, Wasser.
Zusatzleistungen:
Endreinigung (durch Vermieter) | € 149,- |
Haustier | € 10,- / Nacht |
Bettwäsche- Handtuchset (als Leihgabe) | € 25,- / Person |
Kinderbett und Hochstuhl | 1 Set inklusive |
Höhere Belegung:
Normalbelegung: | Bis 6 Personen |
Mögliche Belegung: | 2 – 12 Personen |
Wir behalten uns vor, zeitweise abweichende Preise innerhalb der Saisonzeiten zu berechnen. Insbesondere an sogenannten Brückentagen.
Irrtum und Änderungen vorbehalten.
Anreise / Abreise:
- Anreisezeit: Ab 15 Uhr
- Abreisezeit: Bis 11 Uhr
Lage der Unterkunft:
Ihre Gastgeber:
Familie Schönberg
(Schönberg GbR Vermietungsservice)
Infohotline: 04451 96 96 577
(tägl. 09:00 bis 20:00 Uhr)
| März 2026 | ||||||
| Mo | Di | Mi | Do | Fr | Sa | So |
| 1 | ||||||
| 2 | 3 | 4 | 5 | 6 | 7 | 8 |
| 9 | 10 | 11 | 12 | 13 | 14 | 15 |
| 16 | 17 | 18 | 19 | 20 | 21 | 22 |
| 23 | 24 | 25 | 26 | 27 | 28 | 29 |
| 30 | 31 | |||||
| April 2026 | ||||||
| Mo | Di | Mi | Do | Fr | Sa | So |
| 1 | 2 | 3 | 4 | 5 | ||
| 6 | 7 | 8 | 9 | 10 | 11 | 12 |
| 13 | 14 | 15 | 16 | 17 | 18 | 19 |
| 20 | 21 | 22 | 23 | 24 | 25 | 26 |
| 27 | 28 | 29 | 30 | |||
| Mai 2026 | ||||||
| Mo | Di | Mi | Do | Fr | Sa | So |
| 1 | 2 | 3 | ||||
| 4 | 5 | 6 | 7 | 8 | 9 | 10 |
| 11 | 12 | 13 | 14 | 15 | 16 | 17 |
| 18 | 19 | 20 | 21 | 22 | 23 | 24 |
| 25 | 26 | 27 | 28 | 29 | 30 | 31 |
| Juni 2026 | ||||||
| Mo | Di | Mi | Do | Fr | Sa | So |
| 1 | 2 | 3 | 4 | 5 | 6 | 7 |
| 8 | 9 | 10 | 11 | 12 | 13 | 14 |
| 15 | 16 | 17 | 18 | 19 | 20 | 21 |
| 22 | 23 | 24 | 25 | 26 | 27 | 28 |
| 29 | 30 | |||||
| Juli 2026 | ||||||
| Mo | Di | Mi | Do | Fr | Sa | So |
| 1 | 2 | 3 | 4 | 5 | ||
| 6 | 7 | 8 | 9 | 10 | 11 | 12 |
| 13 | 14 | 15 | 16 | 17 | 18 | 19 |
| 20 | 21 | 22 | 23 | 24 | 25 | 26 |
| 27 | 28 | 29 | 30 | 31 | ||
| August 2026 | ||||||
| Mo | Di | Mi | Do | Fr | Sa | So |
| 1 | 2 | |||||
| 3 | 4 | 5 | 6 | 7 | 8 | 9 |
| 10 | 11 | 12 | 13 | 14 | 15 | 16 |
| 17 | 18 | 19 | 20 | 21 | 22 | 23 |
| 24 | 25 | 26 | 27 | 28 | 29 | 30 |
| 31 | ||||||
| September 2026 | ||||||
| Mo | Di | Mi | Do | Fr | Sa | So |
| 1 | 2 | 3 | 4 | 5 | 6 | |
| 7 | 8 | 9 | 10 | 11 | 12 | 13 |
| 14 | 15 | 16 | 17 | 18 | 19 | 20 |
| 21 | 22 | 23 | 24 | 25 | 26 | 27 |
| 28 | 29 | 30 | ||||
| Oktober 2026 | ||||||
| Mo | Di | Mi | Do | Fr | Sa | So |
| 1 | 2 | 3 | 4 | |||
| 5 | 6 | 7 | 8 | 9 | 10 | 11 |
| 12 | 13 | 14 | 15 | 16 | 17 | 18 |
| 19 | 20 | 21 | 22 | 23 | 24 | 25 |
| 26 | 27 | 28 | 29 | 30 | 31 | |
| November 2026 | ||||||
| Mo | Di | Mi | Do | Fr | Sa | So |
| 1 | ||||||
| 2 | 3 | 4 | 5 | 6 | 7 | 8 |
| 9 | 10 | 11 | 12 | 13 | 14 | 15 |
| 16 | 17 | 18 | 19 | 20 | 21 | 22 |
| 23 | 24 | 25 | 26 | 27 | 28 | 29 |
| 30 | ||||||
| Dezember 2026 | ||||||
| Mo | Di | Mi | Do | Fr | Sa | So |
| 1 | 2 | 3 | 4 | 5 | 6 | |
| 7 | 8 | 9 | 10 | 11 | 12 | 13 |
| 14 | 15 | 16 | 17 | 18 | 19 | 20 |
| 21 | 22 | 23 | 24 | 25 | 26 | 27 |
| 28 | 29 | 30 | 31 | |||
| Januar 2027 | ||||||
| Mo | Di | Mi | Do | Fr | Sa | So |
| 1 | 2 | 3 | ||||
| 4 | 5 | 6 | 7 | 8 | 9 | 10 |
| 11 | 12 | 13 | 14 | 15 | 16 | 17 |
| 18 | 19 | 20 | 21 | 22 | 23 | 24 |
| 25 | 26 | 27 | 28 | 29 | 30 | 31 |
| Februar 2027 | ||||||
| Mo | Di | Mi | Do | Fr | Sa | So |
| 1 | 2 | 3 | 4 | 5 | 6 | 7 |
| 8 | 9 | 10 | 11 | 12 | 13 | 14 |
| 15 | 16 | 17 | 18 | 19 | 20 | 21 |
| 22 | 23 | 24 | 25 | 26 | 27 | 28 |
| März 2027 | ||||||
| Mo | Di | Mi | Do | Fr | Sa | So |
| 1 | 2 | 3 | 4 | 5 | 6 | 7 |
| 8 | 9 | 10 | 11 | 12 | 13 | 14 |
| 15 | 16 | 17 | 18 | 19 | 20 | 21 |
| 22 | 23 | 24 | 25 | 26 | 27 | 28 |
| 29 | 30 | 31 | ||||
| April 2027 | ||||||
| Mo | Di | Mi | Do | Fr | Sa | So |
| 1 | 2 | 3 | 4 | |||
| 5 | 6 | 7 | 8 | 9 | 10 | 11 |
| 12 | 13 | 14 | 15 | 16 | 17 | 18 |
| 19 | 20 | 21 | 22 | 23 | 24 | 25 |
| 26 | 27 | 28 | 29 | 30 | ||
| Saisonzeiten | |
|---|---|
Nebensaison: | 10.01. – 15.03., 15.11. – 20.12. |
Zwischensaison: | 15.03. – 15.06., 15.09. – 15.11., 20.12. –10.01. |
Hauptsaison: | 15.06. – 15.09. |