Haus Steuerbord
-
Dangast an der Nordsee
Beschreibung:
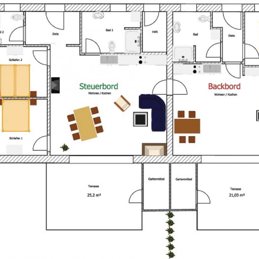
Dieses moderne und barrierefreie EG. Haus mit 2 Schlafzimmern + Schlafsofa im Wohnbereich kann auch gemeinsam mit dem Haus Backbord gebucht werden.
2 – 6
Personen
Personen
2-3
Schlafbereiche
Schlafbereiche
97 qm
Wohnfläche
Wohnfläche
kostenfreies
WLAN
WLAN
Haustiere
erlaubt
erlaubt
Ausstattung:
Wohn- / Essbereich
- Großer Esstisch für 10 Personen
- SAT-TV CD Player Radio
- Kaminofen
- großer Wohnraum mit Schlafcouch
Küche
- Einbauküche mit Herd, Backofen, Mikrowelle und Kühlschrank mit Eisfach
- Geschirrspüler
- Kaffeemaschine
Bad
- Waschmaschine
- 2 Badezimmer mit barrierefreien Duschen (Duschhocker vorhanden)
Außenbereich
- Terrasse in Südrichtung mit Gartenmöbeln und Grill
- 2x PKW Parkplatz vor dem Haus
- Überdachter Fahrradstellplatz
- Ebenerdiger Eingang und Terrasse
Schlafzimmer
- 2 Schlafzimmer:
- 1 Schlafzimmer mit Doppelbett
- 1 Schlafzimmer mit Doppelbett
- Reisebett bei Bedarf möglich
Allgemein
- Barrierefreiheit geprüft
- Auch mit Backbord zusammen nutzbar durch Verbindungstür
- Fußbodenheizung
- W-LAN inklusive
- Nichtraucherobjekt (draußen darf natürlich geraucht werden)
- Wattmobil zusätzlich buchbar:
Weitere Infos zum Wattmobil: https://www.dat-schipp.de/wohnung/wattmobil/
Weitere Infos zur Barrierefreiheit: https://www.dat-schipp.de/downloads/
Preise:
Ab der zweiten Nacht:
| Ab 2. Nacht | Preis / Nacht |
|---|---|
Nebensaison: | 99,- |
Zwischensaison: | 109,- |
Hauptsaison: | 139,- |
Für die erste Nacht:
(inkl. Buchungspauschale)
| 1. Nacht | Preis / Nacht |
|---|---|
Nebensaison: | 134,- |
Zwischensaison: | 144,- |
Hauptsaison: | 174,- |
Alle Preise gelten in € je Haus oder Wohnung je Nacht inkl. Nebenkosten Strom, Heizung, Wasser.
Zusatzleistungen:
Sie haben die Möglichkeit, folgende Leistungen zusätzlich zu buchen:
Endreinigung (durch Vermieter) | € 97,- |
Haustier | € 10,- / Tag |
Bettwäsche- Handtuchset (als Leihgabe) | € 25,- / Person |
Kinderbett und Hochstuhl | auf Wunsch inklusive |
Höhere Belegung:
Bei Anmietung mit mehr Pers. als Normalbelegung berechnen wir: € 10,- / zusätzliche Person / Nacht.
Normalbelegung: | Bis 4 Personen |
Mögliche Belegung: | 2 – 6 Personen |
Wir behalten uns vor, zeitweise abweichende Preise innerhalb der Saisonzeiten zu berechnen. Insbesondere an sogenannten Brückentagen.
Irrtum und Änderungen vorbehalten.
Anreise / Abreise:
- Anreisezeit: Ab 15 Uhr
- Abreisezeit: Bis 11 Uhr
Lage der Unterkunft:
Hollwert 27b - 26316 Dangast
Ihre Gastgeber:
Familie Schönberg
(Schönberg GbR Vermietungsservice)
Infohotline: 04451 96 96 577
(tägl. 09:00 bis 20:00 Uhr)
| Dezember 2025 | ||||||
| Mo | Di | Mi | Do | Fr | Sa | So |
| 1 | 2 | 3 | 4 | 5 | 6 | 7 |
| 8 | 9 | 10 | 11 | 12 | 13 | 14 |
| 15 | 16 | 17 | 18 | 19 | 20 | 21 |
| 22 | 23 | 24 | 25 | 26 | 27 | 28 |
| 29 | 30 | 31 | ||||
| Januar 2026 | ||||||
| Mo | Di | Mi | Do | Fr | Sa | So |
| 1 | 2 | 3 | 4 | |||
| 5 | 6 | 7 | 8 | 9 | 10 | 11 |
| 12 | 13 | 14 | 15 | 16 | 17 | 18 |
| 19 | 20 | 21 | 22 | 23 | 24 | 25 |
| 26 | 27 | 28 | 29 | 30 | 31 | |
| Februar 2026 | ||||||
| Mo | Di | Mi | Do | Fr | Sa | So |
| 1 | ||||||
| 2 | 3 | 4 | 5 | 6 | 7 | 8 |
| 9 | 10 | 11 | 12 | 13 | 14 | 15 |
| 16 | 17 | 18 | 19 | 20 | 21 | 22 |
| 23 | 24 | 25 | 26 | 27 | 28 | |
| März 2026 | ||||||
| Mo | Di | Mi | Do | Fr | Sa | So |
| 1 | ||||||
| 2 | 3 | 4 | 5 | 6 | 7 | 8 |
| 9 | 10 | 11 | 12 | 13 | 14 | 15 |
| 16 | 17 | 18 | 19 | 20 | 21 | 22 |
| 23 | 24 | 25 | 26 | 27 | 28 | 29 |
| 30 | 31 | |||||
| April 2026 | ||||||
| Mo | Di | Mi | Do | Fr | Sa | So |
| 1 | 2 | 3 | 4 | 5 | ||
| 6 | 7 | 8 | 9 | 10 | 11 | 12 |
| 13 | 14 | 15 | 16 | 17 | 18 | 19 |
| 20 | 21 | 22 | 23 | 24 | 25 | 26 |
| 27 | 28 | 29 | 30 | |||
| Mai 2026 | ||||||
| Mo | Di | Mi | Do | Fr | Sa | So |
| 1 | 2 | 3 | ||||
| 4 | 5 | 6 | 7 | 8 | 9 | 10 |
| 11 | 12 | 13 | 14 | 15 | 16 | 17 |
| 18 | 19 | 20 | 21 | 22 | 23 | 24 |
| 25 | 26 | 27 | 28 | 29 | 30 | 31 |
| Juni 2026 | ||||||
| Mo | Di | Mi | Do | Fr | Sa | So |
| 1 | 2 | 3 | 4 | 5 | 6 | 7 |
| 8 | 9 | 10 | 11 | 12 | 13 | 14 |
| 15 | 16 | 17 | 18 | 19 | 20 | 21 |
| 22 | 23 | 24 | 25 | 26 | 27 | 28 |
| 29 | 30 | |||||
| Juli 2026 | ||||||
| Mo | Di | Mi | Do | Fr | Sa | So |
| 1 | 2 | 3 | 4 | 5 | ||
| 6 | 7 | 8 | 9 | 10 | 11 | 12 |
| 13 | 14 | 15 | 16 | 17 | 18 | 19 |
| 20 | 21 | 22 | 23 | 24 | 25 | 26 |
| 27 | 28 | 29 | 30 | 31 | ||
| August 2026 | ||||||
| Mo | Di | Mi | Do | Fr | Sa | So |
| 1 | 2 | |||||
| 3 | 4 | 5 | 6 | 7 | 8 | 9 |
| 10 | 11 | 12 | 13 | 14 | 15 | 16 |
| 17 | 18 | 19 | 20 | 21 | 22 | 23 |
| 24 | 25 | 26 | 27 | 28 | 29 | 30 |
| 31 | ||||||
| September 2026 | ||||||
| Mo | Di | Mi | Do | Fr | Sa | So |
| 1 | 2 | 3 | 4 | 5 | 6 | |
| 7 | 8 | 9 | 10 | 11 | 12 | 13 |
| 14 | 15 | 16 | 17 | 18 | 19 | 20 |
| 21 | 22 | 23 | 24 | 25 | 26 | 27 |
| 28 | 29 | 30 | ||||
| Oktober 2026 | ||||||
| Mo | Di | Mi | Do | Fr | Sa | So |
| 1 | 2 | 3 | 4 | |||
| 5 | 6 | 7 | 8 | 9 | 10 | 11 |
| 12 | 13 | 14 | 15 | 16 | 17 | 18 |
| 19 | 20 | 21 | 22 | 23 | 24 | 25 |
| 26 | 27 | 28 | 29 | 30 | 31 | |
| November 2026 | ||||||
| Mo | Di | Mi | Do | Fr | Sa | So |
| 1 | ||||||
| 2 | 3 | 4 | 5 | 6 | 7 | 8 |
| 9 | 10 | 11 | 12 | 13 | 14 | 15 |
| 16 | 17 | 18 | 19 | 20 | 21 | 22 |
| 23 | 24 | 25 | 26 | 27 | 28 | 29 |
| 30 | ||||||
| Dezember 2026 | ||||||
| Mo | Di | Mi | Do | Fr | Sa | So |
| 1 | 2 | 3 | 4 | 5 | 6 | |
| 7 | 8 | 9 | 10 | 11 | 12 | 13 |
| 14 | 15 | 16 | 17 | 18 | 19 | 20 |
| 21 | 22 | 23 | 24 | 25 | 26 | 27 |
| 28 | 29 | 30 | 31 | |||
| Januar 2027 | ||||||
| Mo | Di | Mi | Do | Fr | Sa | So |
| 1 | 2 | 3 | ||||
| 4 | 5 | 6 | 7 | 8 | 9 | 10 |
| 11 | 12 | 13 | 14 | 15 | 16 | 17 |
| 18 | 19 | 20 | 21 | 22 | 23 | 24 |
| 25 | 26 | 27 | 28 | 29 | 30 | 31 |
| Saisonzeiten | |
|---|---|
Nebensaison: | 10.01. – 15.03., 15.11. – 20.12. |
Zwischensaison: | 15.03. – 15.06., 15.09. – 15.11., 20.12. –10.01. |
Hauptsaison: | 15.06. – 15.09. |
Weitere
Unterkünfte
in Dangast
Sehen Sie sich auch weitere Ferienwohnungen und Ferienhäuser an. Falls Sie Fragen haben, beraten wir Sie gerne auch persönlich